Katenwohnungen
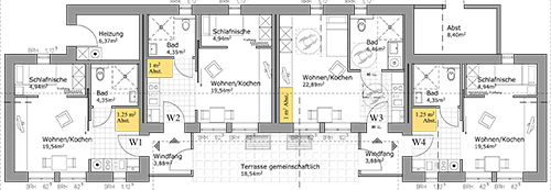
Die Ev.-Luth. Emmaus-Kirchengemeinde in Norderstedt baut vier Katenwohnungen für ältere Menschen, die sich aufgrund ihrer Altersarmut in einer Wohnungsnot befinden. Die 1,5-Zimmer-Wohnungen in eingeschossiger Bauweise mit je ca. 29 m² Grundfläche entstehen auf einer Freifläche an der Paul-Gerhardt-Kirche. Sie erhalten jeweils ein kleines Bad und eine kleine Küche sowie eine abgetrennte Schlafnische. Drei Wohnungen sind barrierefrei nutzbar, die vierte Wohnung ist uneingeschränkt mit dem Rollstuhl nutzbar. Die Eingangstüren dienen als „Klöntüren“. Sie sind innerhalb des Windfangbereiches geteilt zu öffnen und erleichtern das Gespräch untereinander.

Die Wohnungen sind angebunden an das vielfältige Gemeindeleben. Außerdem stehen MitarbeiterInnen der Kirchengemeinde als persönliche Ansprechpersonen zur Verfügung.

Die Vergabe der Katenwohnungen wird in enger Abstimmung mit dem Fachbereich Wohngeld und soziale Dienste (Wohnungsamt) der Stadt Norderstedt geregelt.
